︎
Natalie Rendleman
︎
︎
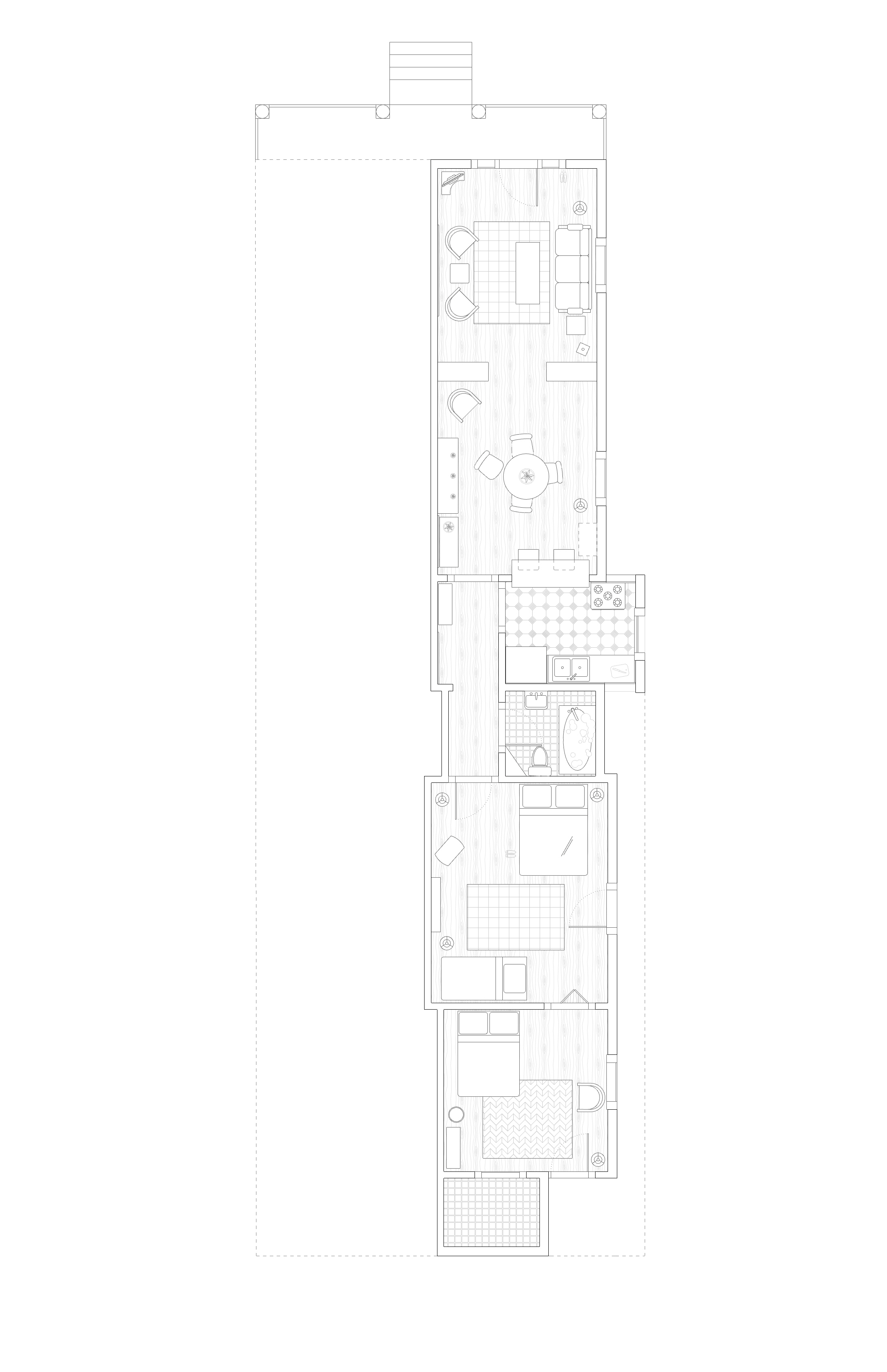
Half of a Shotgun House
2018
Drawn to capture an existing Canal Street apartment in the Mid-City neighborhood in New Orleans.